Cette page rassemblera prochainement les informations relatives aux activités du groupe de travail sur le quartier « Sainte-Marguerite ».
mardi 17 mars 2015, par Hélène Van Ngoc
Anciennes dates
GT Sainte-Marguerite
le lundi 11 mai 2015
à 19h30
Lieu : Locaux d’urbAgora
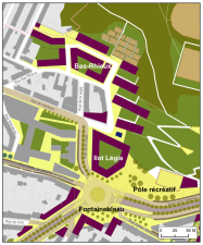
Promenade exploratoire : à la découverte du Master Plan de Sainte-Marguerite
le samedi 25 avril 2015
de 10h à 12h30
Lieu : Rendez-vous aux arrêts de bus du Cadran
Première réunion du groupe de travail
le lundi 6 avril 2015
à 19h30
Lieu : Locaux d’urbAgora
La personne responsable de ce groupe de travail est Hélène Van Ngoc.
Pour la contacter, vous pouvez utiliser le formulaire suivant.






